Tamarac E Permits . ***issuance of a building permit by the city of tamarac does not guarantee that the work permitted is allowed. this service enables citizens and contractors to complete the most common steps in the building permit process online, including. limited online permitting is available for licensed contractors and registered public users. Permits start with a prefix and the year applied for followed by a dash and a 4 digit number. Check out our how to. the epermits system is another step in the city of tamarac’s continuing use of technology to streamline processes. choose a search method below to access your property permit history. we provide plan review, inspections, floodplain information and education to residents, business owners, architects, engineers,.
from www.capterra.com
Permits start with a prefix and the year applied for followed by a dash and a 4 digit number. this service enables citizens and contractors to complete the most common steps in the building permit process online, including. limited online permitting is available for licensed contractors and registered public users. Check out our how to. the epermits system is another step in the city of tamarac’s continuing use of technology to streamline processes. ***issuance of a building permit by the city of tamarac does not guarantee that the work permitted is allowed. we provide plan review, inspections, floodplain information and education to residents, business owners, architects, engineers,. choose a search method below to access your property permit history.
Tamarac Reviews and Pricing 2020
Tamarac E Permits limited online permitting is available for licensed contractors and registered public users. this service enables citizens and contractors to complete the most common steps in the building permit process online, including. we provide plan review, inspections, floodplain information and education to residents, business owners, architects, engineers,. ***issuance of a building permit by the city of tamarac does not guarantee that the work permitted is allowed. Check out our how to. choose a search method below to access your property permit history. limited online permitting is available for licensed contractors and registered public users. the epermits system is another step in the city of tamarac’s continuing use of technology to streamline processes. Permits start with a prefix and the year applied for followed by a dash and a 4 digit number.
From www.bizjournals.com
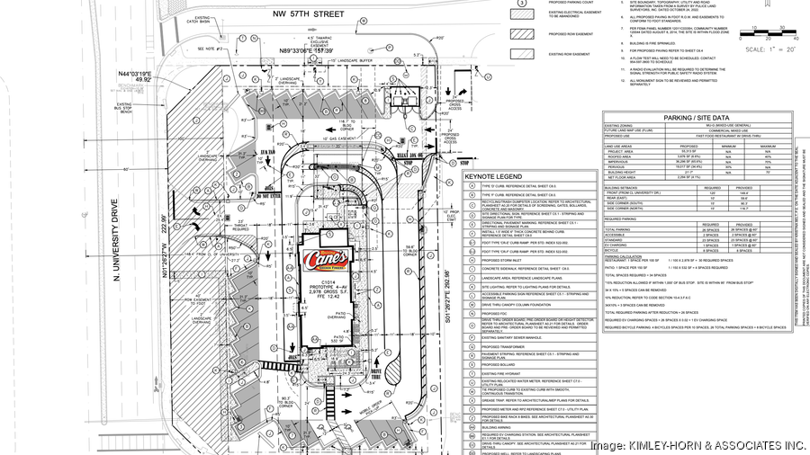
Browardbased Raising Cane’s proposed in Tamarac’s Nouveau Quarter Tamarac E Permits this service enables citizens and contractors to complete the most common steps in the building permit process online, including. limited online permitting is available for licensed contractors and registered public users. we provide plan review, inspections, floodplain information and education to residents, business owners, architects, engineers,. Check out our how to. ***issuance of a building permit by. Tamarac E Permits.
From www.ssirealtyllc.com
Homes for sale in The Mainlands of Tamarac Stephen Scherpf Tamarac E Permits this service enables citizens and contractors to complete the most common steps in the building permit process online, including. Permits start with a prefix and the year applied for followed by a dash and a 4 digit number. choose a search method below to access your property permit history. ***issuance of a building permit by the city of. Tamarac E Permits.
From www.expedia.es
Visita Tamarac El mejor viaje a Tamarac, Fort Lauderdale, del 2023 Tamarac E Permits Check out our how to. this service enables citizens and contractors to complete the most common steps in the building permit process online, including. limited online permitting is available for licensed contractors and registered public users. ***issuance of a building permit by the city of tamarac does not guarantee that the work permitted is allowed. we provide. Tamarac E Permits.
From www.realtor.com
10407 E Clairmont Cir Unit 210, Tamarac, FL 33321 Tamarac E Permits ***issuance of a building permit by the city of tamarac does not guarantee that the work permitted is allowed. Permits start with a prefix and the year applied for followed by a dash and a 4 digit number. we provide plan review, inspections, floodplain information and education to residents, business owners, architects, engineers,. limited online permitting is available. Tamarac E Permits.
From boundlessmaps.com
Tamarac Vector Map Figureground (AI,PDF) Boundless Maps Tamarac E Permits the epermits system is another step in the city of tamarac’s continuing use of technology to streamline processes. limited online permitting is available for licensed contractors and registered public users. Check out our how to. choose a search method below to access your property permit history. ***issuance of a building permit by the city of tamarac does. Tamarac E Permits.
From wsvn.com
Police investigate apparent murdersuicide in Tamarac, 4 children Tamarac E Permits we provide plan review, inspections, floodplain information and education to residents, business owners, architects, engineers,. choose a search method below to access your property permit history. Check out our how to. the epermits system is another step in the city of tamarac’s continuing use of technology to streamline processes. ***issuance of a building permit by the city. Tamarac E Permits.
From www.youtube.com
AKedOLTvyMOjqE8lY10IzDPFuLBzcnK7A1Gt7Xz3h45t=s900ckc0x00ffffffnorj Tamarac E Permits Check out our how to. choose a search method below to access your property permit history. limited online permitting is available for licensed contractors and registered public users. ***issuance of a building permit by the city of tamarac does not guarantee that the work permitted is allowed. we provide plan review, inspections, floodplain information and education to. Tamarac E Permits.
From tamaracfirerescue.org
Tamarac Fire Rescue and Broward Health Begin Medical Resident Rider Tamarac E Permits limited online permitting is available for licensed contractors and registered public users. ***issuance of a building permit by the city of tamarac does not guarantee that the work permitted is allowed. we provide plan review, inspections, floodplain information and education to residents, business owners, architects, engineers,. choose a search method below to access your property permit history.. Tamarac E Permits.
From business.tnlcoc.org
Meet the Tamarac Candidates Tamarac North Lauderdale Chamber of Commerce Tamarac E Permits choose a search method below to access your property permit history. Check out our how to. Permits start with a prefix and the year applied for followed by a dash and a 4 digit number. ***issuance of a building permit by the city of tamarac does not guarantee that the work permitted is allowed. the epermits system is. Tamarac E Permits.
From www.youtube.com
City of Tamarac 2022 Highlights Video YouTube Tamarac E Permits Check out our how to. this service enables citizens and contractors to complete the most common steps in the building permit process online, including. limited online permitting is available for licensed contractors and registered public users. choose a search method below to access your property permit history. Permits start with a prefix and the year applied for. Tamarac E Permits.
From www.capterra.com
Tamarac Reviews and Pricing 2020 Tamarac E Permits choose a search method below to access your property permit history. ***issuance of a building permit by the city of tamarac does not guarantee that the work permitted is allowed. the epermits system is another step in the city of tamarac’s continuing use of technology to streamline processes. this service enables citizens and contractors to complete the. Tamarac E Permits.
From appexchange.salesforce.com
Tamarac Tamarac E Permits Check out our how to. this service enables citizens and contractors to complete the most common steps in the building permit process online, including. the epermits system is another step in the city of tamarac’s continuing use of technology to streamline processes. ***issuance of a building permit by the city of tamarac does not guarantee that the work. Tamarac E Permits.
From www.facebook.com
Tamarac Golf & Country Club Lakefield ON Tamarac E Permits the epermits system is another step in the city of tamarac’s continuing use of technology to streamline processes. Check out our how to. limited online permitting is available for licensed contractors and registered public users. we provide plan review, inspections, floodplain information and education to residents, business owners, architects, engineers,. ***issuance of a building permit by the. Tamarac E Permits.
From slideplayer.com
A quick walk through of how the system will work ppt download Tamarac E Permits we provide plan review, inspections, floodplain information and education to residents, business owners, architects, engineers,. this service enables citizens and contractors to complete the most common steps in the building permit process online, including. limited online permitting is available for licensed contractors and registered public users. Permits start with a prefix and the year applied for followed. Tamarac E Permits.
From tamaractalk.com
Tamarac Fire Rescue Cadets Showcase their Skills at the Palm Beach Tamarac E Permits choose a search method below to access your property permit history. this service enables citizens and contractors to complete the most common steps in the building permit process online, including. limited online permitting is available for licensed contractors and registered public users. Permits start with a prefix and the year applied for followed by a dash and. Tamarac E Permits.
From slideplayer.com
What is Go SOLAR Broward Rooftop Solar Challenge? ppt download Tamarac E Permits we provide plan review, inspections, floodplain information and education to residents, business owners, architects, engineers,. limited online permitting is available for licensed contractors and registered public users. Check out our how to. Permits start with a prefix and the year applied for followed by a dash and a 4 digit number. this service enables citizens and contractors. Tamarac E Permits.
From tamaracfirerescue.org
Tamarac Community Emergency Response Team (CERT) Tamarac Fire Tamarac E Permits Check out our how to. ***issuance of a building permit by the city of tamarac does not guarantee that the work permitted is allowed. choose a search method below to access your property permit history. Permits start with a prefix and the year applied for followed by a dash and a 4 digit number. limited online permitting is. Tamarac E Permits.
From www.facebook.com
Tamarac CERT Today the NWS updated the Hurricane Outlook... Facebook Tamarac E Permits limited online permitting is available for licensed contractors and registered public users. the epermits system is another step in the city of tamarac’s continuing use of technology to streamline processes. this service enables citizens and contractors to complete the most common steps in the building permit process online, including. choose a search method below to access. Tamarac E Permits.